Zum Hauptinhalt springen

Einfamilienhaus
Welver

  • Auftraggeber:

    Privat

  • Ort:

    Dorfwelver

  • Beginn:

    02.2022

  • Fertigstellung:

    in Umsetzung

  • NRF:

    1 m²

  • BRI:

    1 m²

  • BGF:

    1.400 m²

  • Leistungen:

    LP 1-4

  • Bilder:

    VS+

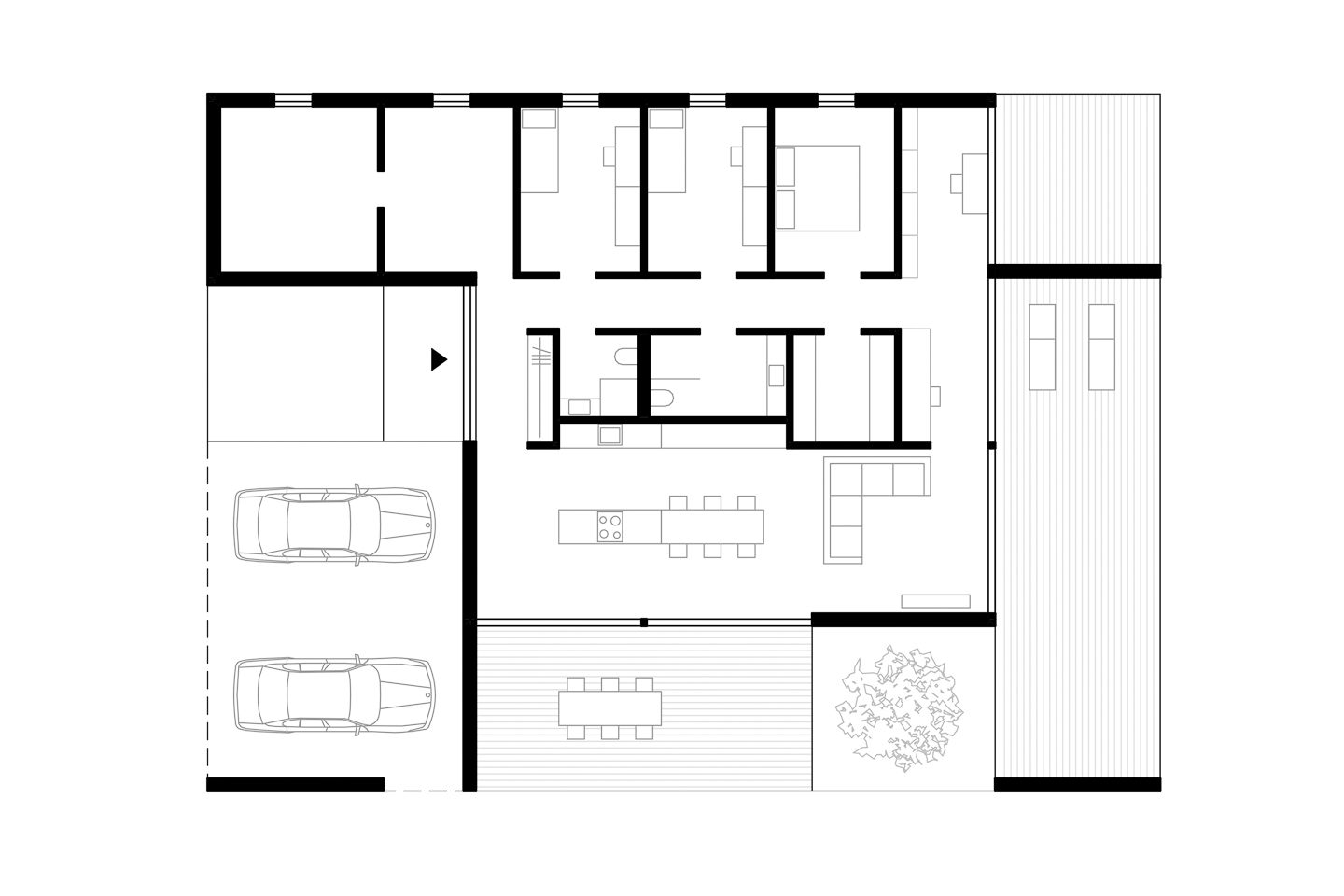
Der Baukörper vermittelt gezielt zwischen öffentlichem Straßenraum und privatem Freiraum: Während der introvertierte Eingangsbereich Schutz und Rückzug bietet, öffnen sich die Wohnbereiche großzügig zur Landschaft und erweitern den Wohnraum in geschützte Außenbereiche.

Der Holzskelettbau ermöglicht langfristige Anpassungsfähigkeit an veränderte Lebenssituationen. Durch klare Sichtbezüge, funktionale Zonierung und gezielte Öffnungen entsteht eine helle, großzügige und zukunftsfähige Wohnstruktur.

Einfamilienhaus

Bei der Bauaufgabe handelt es sich um den Neubau eines Einfamilienhauses für eine kleine Familie im ländlichen Raum. Im Mittelpunkt des Entwurfes steht die Beziehung zwischen Innen- und Außenraum sowie die Einbindung des Gebäudes in seine Umgebung.

Der Baukörper schließt die Lücke in der einseitig bebauten Straße und positioniert sich leicht zurückgesetzt vom Straßenraum, wodurch ein vorgelagerter Vorplatz entsteht. Mit seiner Nordfassade orientiert sich das Gebäude zum öffentlichen Raum. Der Eingangsbereich ist bewusst introvertiert und baukörperlich betont ausgebildet, wodurch ein klarer Übergang zwischen öffentlichem und privatem Bereich definiert wird. Im Gegensatz dazu öffnen sich die seitlichen und zum Freiraum orientierten Fassaden großzügig zur Landschaft. Vermittelte, baulich gefasste Außenräume schaffen geschützte Aufenthaltsbereiche, bieten Schutz vor Witterung und Sonneneinstrahlung und erweitern die nutzbare Wohnfläche in den Außenraum.

Das Gebäude ist als Holzskelettbau konzipiert und ermöglicht über den gesamten Lebenszyklus hinweg flexible Anpassungen an sich verändernde Bedürfnisse der Bewohner. Das erhöhte Fußbodenniveau hebt das Gebäude deutlich über das umgebende Gelände und schützt die Konstruktion.

Großformatige Fensterelemente in den Wohnbereichen stellen einen intensiven Bezug zum Außenraum her und unterstützen die räumliche Großzügigkeit. Die Schlafbereiche sind dagegen mit maßvoll dimensionierten Fensteröffnungen ausgestattet, die dem Bedürfnis nach Privatsphäre Rechnung tragen. Durch die klare Führung von Sichtbezügen sowie die funktionale Clusterung der privaten Räume entsteht im gesamten Haus eine ruhige, großzügige und zusammenhängende Raumwirkung.

Projektteam

Dirk Godau
Carla Sielker
Fabian Weyers

Verwandte Projekte

Wohnen

Brillux Wohnen Münster

Wohnen

York Quartier Münster